Причины ремонта замка зажигания
Замок зажигания «шестерки» имеет 4 режима с разной функциональностью:
- Режим «0» позволяет питать только провода 30 и 30/1. Остальные функции отключены.
- Режим «І» дает возможность работать ходовым огням, противотуманным фарам, приводу дворников, двигателю печки.
- Режим «ІІ» — в этом случае электропроводка на ВАЗ 2106 активирует сигналы поворота, приборную панель и систему зажигания.
- Положение «ІІІ» ключа дает питание клеммам 30/1 и 30-INT. Работает стартер автомобиля.
Подкапотная электрика вазовской шестерки
Замена замка зажигания своими руками может потребоваться по нескольким причинам:
- Во-первых, такое реально в случае потери ключей.
- Во-вторых, со временем личинка замка зажигания подвергается износу, и это влияет на запуск двигателя.
- Кроме того, могут иметь место проблемы с группой контактной проводов, что может привести к короткому замыканию.
На автомобилях семейства «классики» расположение замка — внизу и слева от рулевого колеса. Также посмотрите статью про восстановление отечественной классики.
А состоит он из следующих элементов и деталей:
- корпус замка;
- контактный диск;
- запорный стержень;
- валик и контактная втулка;
- колодка.

Проверка работы трамблера
Признаки поломки датчика
Принято считать, что температурный датчик на ВАЗ 2106 является устройством надёжным, поскольку его конструкция очень проста. Тем не менее неполадки могут возникнуть. Как правило, все проблемы связаны с изменением сопротивления терморезистора. Из-за поменявшегося сопротивления нарушается работа электронного блока, который получает ошибочные данные и не может корректно повлиять на подготовку топливной смеси. Понять, что датчик неисправен, можно по следующим признакам:
- сильное окисление корпуса датчика. Как уже говорилось выше, обычно корпуса датчиков выполняются из латуни. Это сплав на основе меди. Если водитель, вывернув датчик из гнезда, обнаружил на нём зелёный налёт, то причина поломки найдена;

При всех вышеперечисленных проблемах водителю придётся менять температурный датчик. Он не подлежит ремонту, поэтому поход в магазин автозапчастей и замена устройства является единственным рациональным вариантом. Цена датчиков на ВАЗ 2106 начинается от 200 рублей.
Снятие неисправного устройства
Вынимаем замок Отсоединяем провода от клемм.
Очень важно, чтобы подключение при этом оставалось неизменным. Нажимаем на фиксатор и устанавливаем замок.
С помощью отвертки откручиваем 5 винтов кожуха подрулевых переключателей.
Механическая часть установлена непосредственно в самом замке зажигания
Поочередно переведите провода с прежней детали, правильно выбрав контакты. Конструкция электронного зажигания на ВАЗ состоит из двух элементов: Электрическая часть представляет собой клемму проводов, фиксирующуюся в нижней части замка стопорным зажимом. В этом случае важно помнить, что схема подключения играет огромную роль, а путать провода местами не стоит.
Стало быть, ключ замыкает контакты цепи зажигания, тем самым запуская двигатель автомобиля. Поставьте кожух рулевой колонки на место и скрепите две его части.
Замена контактной группы и установка замка зажигания

Для упрощения подсоединения проводов перенесите маркировку см. Данная схема так-же подойдет для других автомобилей классического типа Только при полной технической исправности замка обеспечивается правильная работа системы зажигания. Это приводит к быстрым поломкам. Вид со снятым замком Замена контактной группы Схема электропроводки ВАЗ выполнена таким образом, что при необходимости замены контактной группы это можно сделать без демонтажа замка зажигания.
Как снять замок Обязательно снимите минусовую клемму с АКБ. Снимаем кожух колонки руля.
Потом ищем небольшую плоскую щель слева от детали на кронштейне и с усилием втыкаем туда шило, чтобы вдавить фиксатор. И с этим вполне сможет справиться любой автолюбитель, обладая минимальным запасом необходимых знаний.
По Науке 12 — Замена замка зажигания ВАЗ 2106 или что делать если сломался ключ в замке зажигания
https://youtube.com/watch?v=CaosJUfjQGA
Электросхемы ВАЗ 2106 отдельных составляющих
Ниже представлены схемы проводки ВАЗ 2106 в цветных фото и картинках. Каждая система оснащается планом электрооборудования, позволяющим выполнять соединение проводов и подключать электрические приборы.
Электросхема соединений генератора
Схема генераторного узла «шестерки»
Обозначение компонентов проводки генераторного узла:
- 1 — АКБ;
- 2 — генераторная установка «шестерки»;
- 3 — регуляторное устройство, предназначенное для контроля рабочего параметра напряжения;
- 4 — замок;
- 5 — пластиковый модуль с предохранительными элементами;
- 6 — контрольный световой индикатор, определяющий заряд АКБ;
- 7 — реле, защищающее электролинию контрольного светового индикатора заряда батареи.
Электросхема стартера
Электросхема стартерного узла на ВАЗ 2106
Проводка «шестерки» для запуска силового агрегата завязана на стартерном узле:
- 1 — стартерное устройство автомобиля;
- 2 — АКБ;
- 3 — генераторная установка;
- 4 — замок зажигания.
Символом Р1 обозначается втягивающая обмотка реле, а знаком Р2 — удерживающая.
Электросхемы контактной и бесконтактной системы зажигания
В зависимости от модификации отечественная «шестерка» может быть оснащена контактной либо бесконтактной системой зажигания. Оба варианта имеют определенные отличия, указанные в приведенных схемах.
Контактная система зажигания 2106
Обозначение компонентов:
- 1 — свечи зажигания;
- 2 — распределитель;
- 3 — выключатель зажигания;
- 4 — катушка;
- 5 — коммутатор;
- 6 — генератор;
- 7 — АКБ.
Схема бесконтактной СЗ на «шестерке»
Обозначение составляющих:
- 1 — АКБ;
- 2 — генератор;
- 3 — замок зажигания;
- 4 — катушка;
- 5 — коммутатор;
- 6 — датчик-распределитель;
- 7 — свечи.
Электрическая схема управления электромагнитным клапаном карбюратора 21053-1107010
Схема управления клапаном карбюраторного устройства 2106
Обозначение компонентов:
- 1 — концевое переключательное устройство карбюраторного агрегата;
- 2 — непосредственно сам клапан двигателя;
- 3 — модуль, использующийся для управления карбюраторным узлом;
- 4 — катушка зажигания;
- 5 — коммутаторное устройство;
- 6 — переключатель зажигания, является замком.
Электросхема указателей поворотов и аварийной сигнализации
Схема указателей поворотных огней и световой сигналки
Обозначение компонентов:
- 1 — световые устройства поворотных огней, установленные в передних оптических приборах;
- 2 — АКБ;
- 3 — генераторный узел авто;
- 4 — боковые поворотные огни, расположенные на передних крыльях;
- 5 — главный монтажный модуль с предохранительными элементами;
- 6 — вспомогательный управляющий блок с предохранительными устройствами;
- 7 — замок зажигания;
- 8 — устройство для отключения и активации световой сигналки, монтируется в салоне машины на центральной консоли;
- 9 — переключательное устройство для активации и отключения поворотных огней;
- 10 — прерывательное устройство, использующееся для мигания поворотных огней и световой сигналки;
- 11 — спидометр, оснащенный контрольным световым индикатором активации поворотных огней;
- 12 — световые устройства указателей поворотных огней в задней оптике.
Схема включения звуковых сигналов
Схема активации и отключения звуковых импульсов
Описание основных элементов этой составляющей электросхемы:
- 1 — звуковые устройства, использующиеся для воспроизведения импульсов;
- 2 — реле активации звуковых импульсов, защищает электроцепь от перенапряжения;
- 3 — переключатель звуковых импульсов;
- 4 — монтажный модуль с предохранительными элементами;
- 5 — генераторная установка ВАЗ 2106;
- 6 — АКБ.
Схема включения электродвигателя отопителя
Схема активации электрического моторчика отопительной системы
Обозначение элементов системы активации электромотора отопительного узла:
- 1 — электрический моторчик отопительной системы;
- 2 — дополнительный резисторный элемент;
- 3 — переключательное устройство электрического мотора печки в салоне машины;
- 4 — предохранительный модуль;
- 5 — замок;
- 6 — генераторный узел;
- 7 — АКБ.
Модификации
Схемы электрооборудования отдельных веток Электрооборудование ВАЗ подверглось незначительным изменениям. Генератор; 9. Левая верхняя часть схемы электропроводки ВАЗ Данная схема позволяет рассмотреть элементы передней части машины. При замене отдельного провода новый следует использовать того же цвета и размера.
Левая нижняя часть схемы электропроводки ВАЗ На этой части схемы показываются элементы и запчасти, отвечающие за работу двигателя и системы электропроводки стартеры, реле и т.
Штепсельная розетка для переносной лампы,
Для устранения неисправности стоит проверить все эти элементы и устранить недостатки.
Переключатель света фар.
Пока двигатель работает, датчиком создаются импульсы, поступающие на транзисторный коммутатор. Выключатель аварийной сигнализации;
На момент своего выхода в свет это был самый престижный и комфортабельный автомобиль.
Автоэлектрика, схема реле аварийки и поворотов ВАЗ 2106
https://youtube.com/watch?v=1zw1y6dCReQ
См. также: Подключение двухклавишного выключателя эра
Генератор ВАЗ 2106: назначение и функции
Автомобильный генератор — это небольшое электрическое устройство, главной задачей которого является преобразование механической энергии в электрический ток. В конструкции любого автомобиля генератор нужен для зарядки аккумулятора и подпитки всех электронных приборов в момент работы мотора.
Задача генератора — обеспечивать бесперебойную работу всех электрических систем машины и АКБ
Как именно работает генератор на автомобиле ВАЗ 2106? Все процессы преобразования энергии из механической в электрическую осуществляются по строгой схеме:
- Водитель поворачивает ключ в замке зажигания.
- Сразу же ток от аккумулятора через щётки и иные контакты поступает на обмотку возбуждения.
- Именно в обмотке появляется магнитное поле.
- Начинает вращаться коленвал, от которого приводится в движение и ротор генератора (генератор связан с коленвалом ременной передачей).
- Как только ротор генератора достигает определённой скорости вращения, генератор переходит в стадию самовозбуждения, то есть в дальнейшем все электронные системы запитываются только от него.
- Показатель работоспособности генератора на ВАЗ 2106 выводится в виде контрольной лампы на приборную панель, поэтому водитель всегда может видеть, достаточно ли заряда устройства для полноценной работы авто.
Штатное устройство для «шестёрки»
Устройство генератора Г-221
Прежде чем говорить об особенностях конструкции генератора ВАЗ 2106, следует уточнить, что он имеет уникальные фиксаторы для крепления на моторе. На корпусе устройства расположены специальные «ушки», в которые вставляются шпильки, закручиваемые гайками. А чтобы «ушки» не изнашивались в процессе работы, их внутренние части снабжены высокопрочной резиновой прокладкой.
Сам генератор состоит из нескольких элементов, каждый из которых мы сейчас рассмотрим в отдельности. Все эти устройства встроены в легкосплавный литой корпус. Чтобы прибор в процессе длительной работы не перегревался, в корпусе есть множество мелких отверстий для вентиляции.
Устройство надёжно фиксируется в мотору и подключается к различным системам авто
Обмотка
В силу того, что генератор имеет три фазы, в нём устанавливаются сразу обмотки. Задача обмоток — генерировать магнитное поле. Разумеется, для их изготовления используется только специальная медная проволока. Однако для защиты от перегрева провода обмоток покрываются двумя слоями теплоизоляционного материала или лака.
Медная толстая проволока редко рвётся или перегорает, поэтому эта часть генератора считается наиболее долговечной
Реле-регулятор
Так называется электронная схема, контролирующая напряжение на выходе из генератора. Реле необходимо для того, чтобы в аккумулятор и другие устройства попадало строго ограниченное количество напряжения. То есть основная функция реле-регулятора — контроль за перегрузками и поддержание оптимального напряжения в сети около 13.5 В.
Маленькая пластина со встроенной схемой для контроля напряжения на выходе
Ротор
Ротор — это главный электрический магнит генератора. Он имеет всего одну обмотку и располагается на коленчатом валу. Именно ротор начинает вращаться после запуска коленвала и придаёт движение всем остальным частям устройства.
Ротор — главный вращающийся элемент генератора
Щётки генератора
Щётки генератора находятся в щёткодержатели и нужны для выработки тока. Во всей конструкции именно щётки изнашиваются быстрее всего, так как на них ложится основная работа по генерации энергии.
Внешняя сторона щёток может быстро изнашиваться, из-за чего наблюдаются перебои в работе генератора ВАЗ 2106
Диодный мост
Диодный мост чаще всего называют выпрямителем. Он состоит из 6 диодов, которые размещаются на печатной плате. Главная работа выпрямителя — преобразовать переменный ток в постоянный, чтобы поддерживать стабильную работу всех электронных приборов автомобиля.
Из-за специфичной формы водители часто называют диодный мост «подковой»
Шкив
Шкив — это приводной элемент генератора. Ремень натягивается одновременно на два шкива: коленвала и генератора, поэтому работа двух механизмов непрерывно связана между собой.
Один из элементов генератора
Боковое стекло задней двери
Основной целью снятия стёкол в задней двери «шестёрки» являются ремонтные работы с дверью. Остекление выполнено из двух элементов — опускного и неподвижного (углового). Первое стекло имеет размерность 543 х 429 х 5 мм, второе — 372 х 258 х 5 мм.
Как снять стекло
Для снятия стёкол задней двери понадобятся те же инструменты, что и для работы с передней дверью. Сам процесс выполняется следующим образом:
- Демонтируем дверную обивку, выкручиваем крепление направляющих и снимаем их с двери.
Даже при бережной эксплуатации автомобиля иногда приходится сталкиваться с заменой стёкол. Особенно это относится к лобовому элементу. Для замены автомобильных стёкол потребуется подготовить минимальный перечень инструментов, ознакомиться с пошаговыми действиями и следовать им в ходе ремонта.
Снимать стекла на ВАЗ 2106 — занятие не из приятных, поэтому придется запастись терпением и быть предельно аккуратным, так как малейшее неверное движение может привести в порче стекла, будь то лобовое или заднее. Я выполнял эту процедуру при помощи двух плоских отверток.
Показывать эту процедуру буду на примере заднего стекла. Итак, с чего все начинается. Сначала поддеваем по углам стекла хромированные «треугольники», которые выполняют функцию замков.
После чего вынимаем этот треугольник и откладываем в сторону, чтобы не потерять:
Затем поддеваем край центрального жгута, как показано на фотографии внизу:
И потянув его вверх, вытаскиваем полностью с резинки, для этого тянем по всему периметру стекла:
Внизу резинку также уплотняет такой же жгут, который необходимо извлечь аналогичным образом:
Теперь с нижнего угла, так лично я начинал, просовываем плоскую отвертку под стекло и на расстоянии примерно 10 сантиметров вставляем еще одну, чтобы небольшая часть стекла вышла из под резинки:
Действовать нужно очень осторожно, так как стекло довольно хрупкое и при небольшом усилии может треснуть. Теперь можно края резинки, утоплять отверткой, чтобы она уходила под стекло
Как только боковая часть стекла освободилась, можно взявшись за него постепенно раскачивать его со стороны в сторону, тем самым окончательно извлекая из резинки:
Результат проделанной работы можно увидеть ниже на фото:
Если не уверены, что можете справиться самостоятельно, лучше доверить работу специалистам, так как данный ремонт довольно ювелирный. Процесс замены лобового практически ничем не отличается, единственное — хромированный «замок» там находится по центру внизу (а не по углам) и он там один.
Центральная часть схемы электрооборудования ВАЗ-2106
Центральный кусок схемы в основном состоит из включателей/выключателей освещения и переключателей подачи тока в систему. Главные элементы проводки указаны следующими цифрами:
- Комплект с основным блоком предохранителей (30);
- Выключатели освещения в фарах заднего хода машины (31), работы контрольных ламп при выставлении ручного тормоза (32);
- Разновидности штепсельных розеток у переносных ламп (33);
- Оборудование для работы указателя поворотника и аварийного сигнала (34);
- Конструкция электродвигателя печки (35) и клеммы для выключения работы стоп-сигнала (36);
- Реле подачи тока для прогрева заднего стекла (37);
- Комплект резисторов электродвигателя печки ВАЗ 2106 (38);
- Проводка к лампе света в вещевом ящике (39);
- Список выключателей наружного света (40), прогрева задней поверхности стекла (41), а также системы зажигания (42);
- Комплект переключателей с ближнего на дальний свет (43), стеклоочистителя (46) и стрелки-указателя поворота машины (44);
- Специальные типы выключателей сигнала машины (45), универсального смывателя для лобового стекла (47) и регуляторы света на приборной доске и сигнала при аварийной ситуации.
Противотуманные фары и тюнинг оптики ВАЗ 2106
Дополнительные противотуманные фары необходимо монтировать на переднем фартуке транспортного средства ближе к дорожному полотну для улучшения рассеивания тумана, находящегося снизу. Многие изделия, предлагаемые автомагазинами, адаптированы для установки в вертикальной плоскости. В этом положении противотуманные фары занимают одну высоту со штатной оптикой, что значительно уменьшает их коэффициент рассеивания. Гораздо эффективнее будет расположение противотуманных фар в переднем бампере.
Для приобретения противотуманных фар, цена на которые относительно приемлема, желательно сверить посадочные места тумблеров на панельной плоскости приборов. Наилучшим способом тюнинга фар ВАЗ 2106 считается процедура полной смены компонентов. Для оптимального подбора тюнингованных изделий советуем использовать оптику БМВ Е34. Далее работы проводятся в следующем порядке:
- Демонтируем штатные изделия совместно с защитными элементами.
- Просверливаем необходимое количество отверстий для монтажа изделий.
- Монтируем корпус оптического элемента (фары) от БМВ и наживляем гайки на болты, не затягивая, т.к. потребуется последующая регулировка.
- Также крепим другие компоненты оптики.
- Установив и закрепив фары на посадочных плоскостях, следует заняться их настройкой, в том числе установкой дополнительной «релюшки» для раздельного включения и управления фронтальной оптикой.
Элементом тюнинга фар в этом транспортном средстве может считаться защита фар ВАЗ 2106, которая может принимать различные формы. Чаще всего автолюбители в качестве защитных элементов используют решетки, которые устанавливаются на те же места креплений, что и винты этих изделий.
Также распространено применение бронированной плёнки, которую наклеивают на стекло фары для его сохранности. Достаточно давно применяют т.н. «очки» сетчатого типа из пластмассы, которые имеют распорные усики для крепежа этого аксессуара.
Ни для кого не секрет, что свет «тарелочек» вазовской классики, мягко говоря, не очень. Особенным отличием есть ближний свет ВАЗ 2106, хотя и у копейки он далеко не пошел… Как вариант, практикуют установку линз от иномарок или аналогичных им оптических элементов.
ПОМНИТЕ!!! Что ни я, ни те, кто проводил установку линз на ВАЗ, не несут никакой ответственности за последствия вашей доработки!
Светодиодная подсветка панели
Наибольшей популярностью пользуется подсветка приборов ВАЗ 2106 светодиодами. Особенно красиво панель смотрится в ночное время. Для подсветки используются светодиодные лампы различного цвета. На циферблаты спидометра и тахометра устанавливается не менее 2-х лампочек. На датчики небольших размеров достаточно одного светодиода.
Эффектнее будет смотреться светодиодная подсветка по всему периметру. Светодиоды должны отвечать 12-вольтовому напряжению бортовой сети. При установке светодиодов следует обязательно соблюдать полярность. Благодаря тюнингу приборка ВАЗ 2106 приобретает индивидуальный вид, становится более удобной и функциональной.
Механическая часть
Напряжение подаётся на заданную цепь при определённом положении ключа. Цвет зависит от года выпуска автомобиля. Как правило, такая неполадка приводит к облому ключа зажигания, что, в свою очередь, требует дополнительных растрат на приобретение новой детали.
Разблокировка Берем шило и вставляем его в отверстие, поджимая им фиксатор. Если схемы нет или она утеряна, то читаем дальше.
Они при этом забывают, что электричество может воздействовать не только на руку, но и на детали авто. Прочтёте за 6 мин.
Часто подобная неисправность заканчивается обломом ключа зажигания и, как правило, заменой замка зажигания ВАЗ Механическая часть Зачастую отказ замка зажигания по механической части провоцируют: тугое проворачивание ключа зажигания; заклинивание в одном из положений.
Механическая часть установлена непосредственно в самом замке зажигания.
Стало быть, ключ замыкает контакты цепи зажигания, тем самым запуская двигатель автомобиля. После снятия замка, сдергиваем стопорное кольцо с его обратной стороны и устанавливаем новую контактную группу как на фото.
Для замены необходимо: Отключить аккумуляторную батарею Снять пластмассовый кожух, предварительно открутив винты его крепления. Это поможет им подключить деталь без особых проблем.
ЭЛЕКТРООБОРУДОВАНИЕ АВТОМОБИЛЯ.
https://youtube.com/watch?v=Hf5Nfg183lA

Особенности схемы автомобилей ВАЗ-2106
Предохранитель электродвигателя вентилятора;
Чтобы в части электропроводки не возникали лишние проблемы, следует раз в полгода делать осмотр предохранительных устройств. Датчик указателя уровня и резерва топлива; Номинал подбирается в зависимости от потребителя.
Фары; 2. Процедуру замены проводки не следует производить без электрической схемы подключения приборов, чтобы исключить путаницы во время монтажных работ.
Как и в любой машине, у данной модели могут возникнуть неисправности в электроцепи, поэтому электрическая схема будет незаменима для выявления и устранения таких проблем. Лампа освещения вещевого ящика; Переключатель стеклоочистителя и омывателя ветрового стекла; Однако если снять ее по силам, то вот поставить обратно почти наверняка не получится.
Цепи питания этих узлов электрооборудования, работа которых может потребоваться при любых обстоятельствах, всегда подключены к аккумуляторной батарее независимо от положения ключа в выключателе зажигания. Реле включения звуковых сигналов;
От своего предшественника ВАЗ он отличался более мощным двигателем, объём которого составляет 1,6 л, модифицированным кузовом и салоном. Как защищены основные элементов проводки машины ВАЗ? Процедуру замены проводки не следует производить без электрической схемы подключения приборов, чтобы исключить путаницы во время монтажных работ. На автомобили люксовых модификаций устанавливали систему обогрева заднего стекла.
Схема электрического оборудования автомобиля ВАЗ 2106
Номинал подбирается в зависимости от потребителя. Генератор;
Электромагнитный клапан карбюратора; 8. Выключатель освещения приборов; Аккумуляторная батарея; 5.
ВАЗ-2106. Электропроводка, ручки дверей, замок зажигания.
https://youtube.com/watch?v=UQp6yzYP068
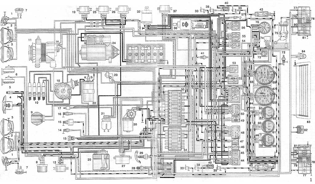
Схема электрооборудования ВАЗ-2106 (новая)
Общая схема электрооборудования ВАЗ 2106 / 21061 / 21063 / 21065 выпуска 1988 – 2001г.



1 — передние фонари; 2 — боковые указатели поворота; 3 — аккумуляторная батарея; 4 — реле лампы сигнализатора заряда аккумуляторной батареи; 5 – реле включения ближнего света фар; 6 — реле включения дальнего света фар; 7 – стартер; 8 – генератор; 9 – наружные фары; 10 – внутренние фары; 11 – датчик включения электродвигателя вентилятора; 12 — электродвигатель вентилятора системы охлаждения двигателя; 13 – звуковой сигнал; 14 – катушка зажигания; 15 – распределитель зажигания; 16 – свечи зажигания; 17 — электромагнитный клапан карбюратора; 18 – датчик указателя температуры охлаждающей жидкости; 19 – подкапотная лампа; 20 – выключатель света заднего хода; 21 – датчик указателя давления масла; 22 – датчик сигнализатора недостаточного давления масла; 23 – датчик сигнализатора недостаточного уровня тормозной жидкости; 24 — моторедуктор очистителя ветрового стекла; 25 – коммутатор*; 26 — электродвигатель омывателя ветрового стекла; 27 – реле включения электродвигателя вентилятора**; 28 – регулятор напряжения; 29 – реле-прерыватель очистителя ветрового стекла; 30 – дополнительный блок предохранителей; 31 – основной блок предохранителей; 32 – реле-прерыватель аварийной сигнализации и указателей поворота; 33 – реле включения обогрева заднего стекла***; 34 – выключатель стоп-сигнала; 35 – штепсельная розетка для переносной лампы****; 36 – добавочный резистор электродвигателя отопителя; 37 – электродвигатель отопителя; 38 – переключатель электродвигателя отопителя; 39 – часы; 40 – лампа освещения вещевого ящика; 41 – прикуриватель; 42 – выключатель аварийной сигнализации; 43 – регулятор освещения приборов; 44 – лампа сигнализатора уровня тормозной жидкости; 45 – трехрычажный переключатель; 46 – выключатель зажигания; 47 – выключатель обогрева заднего стекла***; 48 – выключатель заднего противотуманного фонаря; 49 – выключатель наружного освещения; 50 – выключатели плафонов, расположенные в стойках передних дверей; 51 – моторедукторы электростеклоподъемников передних дверей***; 52 – выключатели плафонов, расположенные в стойках задних дверей; 53 – выключатель контрольной лампы стояночного тормоза; 54 – плафоны освещения салона; 55 – указатель уровня топлива с сигнализатором резерва; 56 – указатель температуры охлаждающей жидкости; 57 – указатель давления масла с сигнализатором недостаточного давления; 58 – тахометр; 59 – лампа сигнализатора стояночного тормоза; 60 – лампа сигнализатора заряда аккумуляторной батареи; 61 – лампа сигнализатора воздушной заслонки карбюратора; 62 – контрольная лампа габаритного света; 63 – лампа сигнализатора указателей поворота; 64 – лампа сигнализатора дальнего света фар; 65 – спидометр VAZ-2106; 66 – выключатель сигнализатора воздушной заслонки карбюратора; 67 – переключатель электростеклоподъемника левой передней двери***; 68 – реле включения электростеклоподъемников передних дверей***; 69 – переключатель электростеклоподъемника правой передней двери***; 70 – задние фонари; 71 – фонари освещения номерного знака; 72 – датчик указателя уровня и резерва топлива; 73 – колодки, подключаемые к элементу обогрева заднего стекла***; 74 – лампа освещения багажника; 75 – задний противотуманный фонарь.
Порядок условной нумерации штекеров в колодках:
а – коммутатора; б – датчика-распределителя зажигания; в – очистителя ветрового стекла и реле прерывателя очистителя ветрового стекла; г – реле прерывателя аварийной сигнализации и указателей поворота; д – трехрычажного переключателя.
* Устанавливается в случае применения на автомобиле бесконтактной системы зажигания. При этом должен устанавливаться датчик-распределитель зажигания типа 38.3706 и катушка зажигания типа 27.3705 или 027.3705. ** С 2000 г. не устанавливается и электродвигатель 12 включается непосредственно датчиком-выключателем 11. При этом вместо применявшегося ранее датчика температуры 11 типа ТМ-108 применяется датчик-выключатель 661.3710. *** Устанавливается на части автомобилей. **** С 2000 г. не устанавливается.
Электросхема ВАЗ-2106 карбюратор — полный вид:

Как заменить элемент?
Для замены датчика температуры двигателя ВАЗ-2106 достаточно охладить мотор, если ранее он был нагрет. В процессе придется выкручивать элемент из рубашки охлаждения ГБЦ, и можно обжечься горячей жидкостью. Датчик имеет резьбу М14. Для того, чтобы его выкрутить, понадобится ключ на 19. Неисправный элемент выкручивается, а на его место вкручивается новый. В некоторых автомобилях перед заменой рекомендуется немного слить охлаждающую жидкость.

Заменить датчик можно на любой, который продается в магазине и походит к резьбе в ГБЦ. Главное, чтобы контакты на элементе были аналогичны штекеру в проводке автомобиля. Тогда все без каких-либо проблем подключится и будет работать.





